| 1. 対象物件の概要 |

■ 敷地概要
- 敷地面積 1800u
- 買収面積 30u
- 残地面積 1770u
- 取得割合 1.6%
- 建築基準法の用途地域制限
工業地域
- 建築基準法の建築制限
建ぺい率 : 60%
容積率 : 200%
防火指定 : なし
■ 建物概要
|
NO
|
構造及び用途
|
建築面積u
|
延床面積u
|
|
A棟
|
鉄骨造平家建車検工場
|
300 |
300 |
| B棟 |
鉄骨造2階建事務所
|
30 |
60 |
| C棟 |
鉄骨造2階建修理工場兼事務所
|
300 |
400 |
| D棟 |
軽量鉄骨造2階建倉庫
|
70 |
140 |
| |
計 |
700u |
900u |
|
|


|
| 2. 検討のポイント |
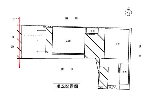
- 現況道路と建物A棟の地盤までには高低差(+1.2m)があり、勾配のあるスロープになっていること。
- 当工場は一般車、大型車、貨物トラックなど車種に制限なく受け入れていること。
- 支障となるのは車両進入口であり、建物は直接支障となっていないこと。
- 大型貨物(低床ロング)の※クリアランスは80oと僅かであること。
- 進入の際は道路との接触を避けるため徐行運転されていること。
※車両後部のガードと道路との一番低い地点における測定値
|
| 3.
考えられる案 |
本件は建物は支障とならず、土地の支障割合が1.6%と僅かである。しかし、スロープの幅が短くなるため、勾配が急となる。
スロープを変更した場合、従前と同様な乗り入れが可能か否か検討を行う。
|
|
| <第一案>構内移転工法 |
計画道路面とA棟地盤を直線のスロープにて施工する案です。
■問題点
- クリアランスの確保ができず、道路と接触する。
- スロープの施工期間中は営業休止が生じる。
|
|
 |
次に、第二案ではクリアランスの確保を検討します。
|
| <第二案>構内移転工法 |
スロープの中間地点で折点を設け、スロープを施工する案です。
■利点
- 進入地点と中間地点のクリアランスが確保できる。
- クリアランス幅(120o)が増加するため、接触の危険性が緩和される。
|


|
|
| 4.
まとめ |
本件は、クリアランスの確保できる第二案が採用となりました。
このような事例のように、建物が支障とならず、土地も僅かしか支障とならない場合は、直接支障箇所のみの補償になりがちです。しかし、私達コンサルタントはその主観に捕らわれることなく、使用実態を十分に把握し、事業により及ぼすことになる影響を吟味し、正当な補償を提供することが必要と考えます。
|
>>このページの先頭へ
|