| 1. 対象物件の概要 |

■ 敷地概要
- 敷地面積 9800u
- 買収面積 300u
- 残地面積 9500u
- 取得割合 3.0%
- 建築基準法の用途地域制限
市街化調整区域
- 建築基準法の建築制限
建ぺい率 : 50%
容積率 : 80%
防火指定 : なし
■ 建物概要
| ビニールハウスA
|
1700u |
 |
支障面積20u(1.1%支障) |
| ビニールハウスB |
970u
|
|
支障面積20u(2.0%支障) |
| ビニールハウスC |
600u
|
|
支障なし |
|
|

ビニールハウスは軽量鉄骨で骨組みがなされており、かなり頑丈に出来ています。しかし屋根および周壁にあたる部分はビニールで覆われているだけですから、一つの建造物であっても、不動産登記法上では建物には認定されません。
(その規模、使用状況によっては建築確認が必要となる場合がありますので注意が必要です。(面積、高さなど)本件の場合、建築確認の対象とはなりません。)
補償基準ではビニールハウスの取り扱いは『生産設備』に分類されます。生産設備とは製品等の製造に直接・間接的に係わっているもの又は営業を行う上で必要となる設備のことをいいます。
『用地調査等標準仕様書、第4条表2工作物区分』
以下のものが上げられます。
| A. 製品等の製造、育成、養殖等に直接関わるもの。 |
 |
園芸用フレーム、わさび畑、養殖池、牛、豚、鶏その他の家畜の飼育又は調教施設等
|
| B.営業を目的に設置されているもの又は営業上必要なもの。 |
|
テニスコート、ゴルフ練習所等の施設、自動車練習場のコース、遊園池、釣り堀等 |
| C.製品等の製造、育生、養殖又は営業には直接関わらないが間接的に必要となるもの。 |
|
工場の貯水池、浄水池、駐車場、運動場等の厚生施設。 |
|
|
| 2. 検討のポイント |
- 生産設備であること。
- 支障となるのはビニールハウスのごくわずかの面積であること。
- 敷地内には多数のビニールハウスが設置され、移転させる空地はないこと。
- 作業効率のためビニールハウスの出入り口には空地を設けていること。
- 農業補償の要否
|
| 3. 考えられる案 |
|
| <第一案> 除却工法 |
支障となる範囲がビニールハウスの全体に比較し、僅かであるため、除却することが可能か検討をします。
切り取り補修を行った場合、施設に斜めの部分が生じます。ビニールハウスの特性上、温室となる空間であるため、施設に斜めの部分が発じると、送風機による温風の循環が滞り、農作物の育生に多大な影響が及ぶことが懸念されます。また、北側の空地が損なわれるため、作業環境が阻害されます。
|
|
 |
|
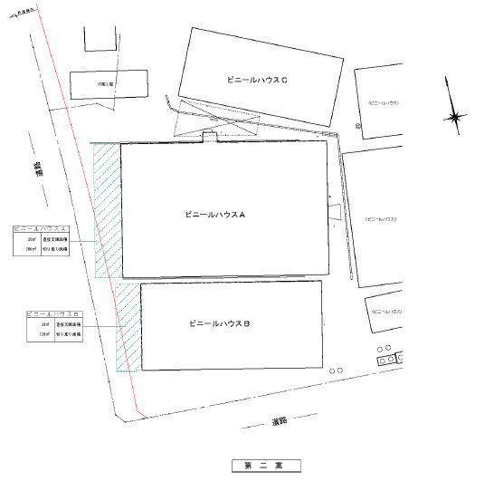
| <第二案>改造工法 |
支障となる範囲を撤去し、同等規模を一部改造することにより、機能回復が図れるかの検討になりますが、構造上切り取りが可能な範囲での改造面積は、ビニールハウスAで200u・ビニールハウスBで120uとなります。
しかし、改造する面積を施工する空地を確保することは困難であるため合理的な移転工法とはなりません。
第一案、第二案とも残地で機能回復を図りましたが、改造に及ぶ範囲・敷地(空地)の状況から施設の機能回復は図れません。
そこで、第二案の改造工法に必要な改造面積に着目すると、ビニールハウスのA・Bで機能回復に必要な面積は合計で320u(200+120)となります。
この面積を一つの施設として考えた場合、間口8m×奥行40m=320uの規模となり、一施設として独立した施設と言えます。
この施設を、残地と分離し、構外へ移転させることで機能回復が図れるか検討します。 |

|
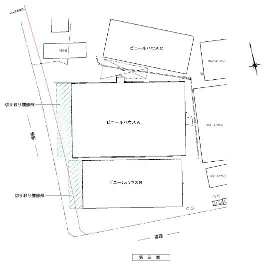
| <第三案> 分割移転工法 |
支障となるビニールハウスA・Bは切り取り補修を行います。また、喪失される面積分は構外へ同等規模のビニールハウス(8m×40m=320u)を設置することとします。
|

|
■利点
- 施設規模は縮小されるものの、ビニールハウスA・Bは切り取り補修により施設の機能回復が図れる。(正形が保てる)
- 施設への出入り口の確保ができる
■問題点
- 分離することにより共有されていた施設(給水・暖房設備)が移転先に新たに必要となる。
|
|
| 4. まとめ |
本件は、第三案を採用工法と認定しました。
この案を認定するに当たり、起業者との度重なる協議を行いました。先ず、農業補償(規模縮小)に該当するのか否かです。公共用地の取得の場合、取得する土地に対しては正常な取引価格をもっての補償となります。この場合、農業補償として補償されるものは土地価格に含まれるとの判断になるため、農業補償は行わないことになります。
分割移転を認定し、新たなビニールハウスの補償及び、必要設備の関連補償を行った経緯として、起業者独自の補償基準に準じたこと、損失補償に関する憲法29条の財産権の補償に関連し、機能回復を重視したためです。
今回の補償がすべての事案に通じる補償内容とは言えませんが、一つの例として参照して頂ければ幸いです。
なお、立毛補償については収穫時期以後の移転と断定し補償とはなりませんでした。 |
>>このページの先頭へ
|