| 1. 物件の概要、敷地・立地状況等 |

■ 物件概要
- 鉄筋コンクリート造6階建。
- 分譲マンション(区分所有40戸)。
■ 敷地・立地状況
- 敷地及び建物・工作物等は直接支障となりません。
- 東側と南側が橋りょう整備工事による道路に面しています。
- 東側にマンション入口エントランス、階段スロープが設けられています。
■ 現況道路と計画道路(橋りょう取付け道路)の状況
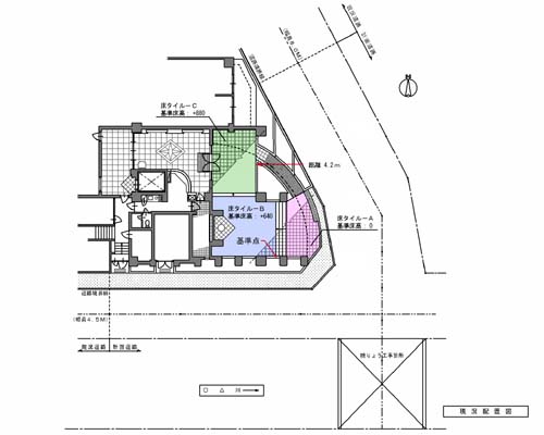
- 東側道路面で最大0.9m高くなります。
- 南側道路面で最大1.0m高くなります。
|
|
| 2. 本件の補償の考え方(基準) |
今回は敷地等が直接支障となりません。この様な起業地外の第三者に対する損失の補償としては、「公共用地の取得に伴う損失基準要綱」第44条に基づき検討します。 |
第44条(隣接土地に関する工事費の補償)
「土地等の取得又は土地等の使用に係る土地を事業の用に供することにより、当該土地、当該物件の存する土地、当該権利の目的となっている土地及び当該土石砂れきの属する土地並びに残地等以外の土地に関して、@通路、みぞ(溝)、かき(垣)、さく(柵)その他の工作物の新築、改築、増築若しくは修繕又は盛土若しくは切土をする必要があると認められるときは、これらの工事をすることをA必要とする者に対して、Bその者の請求により、C社会通念上妥当と認められる限度において、これに要する費用の全部又は一部を補償するものとする。」
|
|
この条文は、隣接土地等の従前の使い方による利用価値を維持するために、工事を必要とする場合は、当該必要工事費を補償する旨を定めたものです。
以上のことを踏まえ、
本件において条文中の@、Cを検討していきます。
尚、A、Bについてはマンション居住者(管理組合)です。
|
@について、ア・有形的、イ・機能的、ウ・法制的な阻害状況を把握します。
ア・有形的阻害の状況
- 現道と取付け道路に0.9mから1.0mの高低差が生じ、玄関エントランスまでの階段スロープに支障が生じます。
- 嵩上げにより玄関庇の間が狭くなり圧迫感が生じます。
イ・機能的阻害の状況
- 段差が生じるために居住者の出入りが困難になります。
ウ・法制的阻害の検討
- 本件は当該敷地の規模、平面形状等に変化が無いことから、法制的問題は生じません。
|
Cについて
- 計画道路と1Fフロアーまでの段差の解消が必要となります。
- 段差解消に伴う階段等の改修が必要となります。
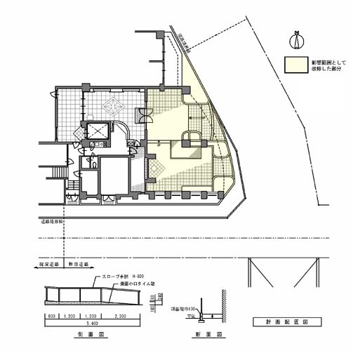
これらは盛土および、階段等の再配置により合理的な機能回復が図れます。
しかし、盛土及びそれに伴う階段の再配置に伴い、玄関部分に圧迫感が生じるため、階段、スロープの形状をエントランス部分も含め検討し、最小限の範囲内でエントランスホールの改修工事を行うことにより有形的な機能回復を図りました。
居住者にとってマンション入口部分は、建物の『顔』であり、『品格』を求める場所であるとの見解から通常妥当と認められる範囲と判断しました。
したがって、盛土工事費、階段、スロープ設置工事費及びエントランスホールの改修工事費の補償を行いました。
|

現状配置図

計画配置図
|

南側 現況立面図

東側 現況立面図
|
今回のケースは、直接支障とならない第3者補償を取り上げました。
本件の場合、起業者側は橋梁工事に伴う事業損失として、一部改修工事の必要性を認識している中、マンション管理組合より、出入り口の機能、嵩上げによる防犯や視角の問題(フェンス等)等、諸問題の提起がありました。起業者側は管理組合と何度も意見交換を行い、本文に記述した条例に基づき過剰補償にならない工事内容を以って、理解を得る努力を重ね、管理組合側の同意を得ることが出来ました。
|
>>このページの先頭へ
|
|