| 1. 対象物件の概要 |

■ 敷地概要
- 敷地面積 : 250u
- 買収面積 : 40u
- 残地面積 : 210u
- 取得割合 : 16%
- 建築基準法の用途地域制限
市街化調整区域
- 建築基準法の建築制限
建ぺい率 : 60%
容積率 : 100%
防火指定 : なし
■ 建物概要
|
木造2階建事務所併用共同住宅
|
|
| 区分 |
用途 |
面積 |
区分 |
用途 |
面積 |
| 1F |
事務所・工場 |
101u |
2F |
所有者住居 |
88u |
| |
共同住宅 |
37u |
|
共同住宅 |
37u |
| |
計 |
138u |
|
計 |
125u |
| 合計 |
263u |
|
■ 建物と敷地の使用状況等
- 1階は所有者が経営する法人の事務所・工場と1世帯の賃貸共同住宅として使用され、2階は所有者住居と1世帯の共同住宅として使用されています。
また、所有者と所有者が経営する法人は賃貸借契約書の内容において密接な関係にあります。(その内容については多岐に及ぶため割愛いたします。)
- 残地における建ぺい率、容積率の検証
| 建ぺい率 |
220u |
× |
0.6 |
= |
132u |
< |
138u |
不適合 |
| 容積率 |
220u |
× |
1.0 |
= |
220u |
< |
263u |
不適合 |
|
|

|
| 2. 検討のポイント |
- 支障割合が16%で残地が約210uあること。
- 残地において建ぺい率、容積率が不適合であること
- 建物の用途が、所有者の住居部分、所有者が営む会社の事務所・工場部分、共同住宅部分の3つに分かれていること。
- 直接支障になるのは、所有者の住居部分(2Fの一部分)と会社の事務所・工場部分(1Fの一部分)で、共同住宅部分は直接支障にならないこと。
- 建物所有者と建物所有者が経営する法人は、賃貸借契約書の内容から密接な関係にあること。
|
| 3. 考えられる案 |
| 当該建物を残地内に現状の形状のまま再築することは、建築基準法上容積率がオーバーになるため、現在の建物、機能を全て残地に移転することは出来ません。建物の用途が所有者住居部分、所有者の事務所・工場部分、共同住宅部分の3つに分かれていることから、本件の移転工法は分割移転を前提として検討を行います。 |
|
| <第一案> 分割移転@ |
賃貸共同住宅部分を切り取り補修し残地に残し、所有者住居及び事務所・工場部分を構外に再築する案です。
■利点
- 建物所有者と所有者の会社の機能、利便性が維持できます。
- 建物(一部)の移転が生じません。
■問題点
- 残地に有休地が多く残ります。
- 所有者が構外移転になります。
|
|

|
|
| <第二案> 分割移転A |
賃貸共同住宅部分を切り取り補修し(@案)、残地に所有者住居を照応建物として再築し事務所・工場を構外に再築する案です。
■利点
- 残地の有効利用ができます。
- 所有者が当該地に居住出来ます。
- 建物(一部)の移転が生じません。
■問題点
- 所有者住居と所有者の会社が分断されることで従前の機能、利便性が確保できません。
|

| また、住宅の代わりに事務所・工場を残地に残す案も考えられますが、問題点は同じであり、加えて営業休止期間も長くなるため合理とはいえません。 |
|
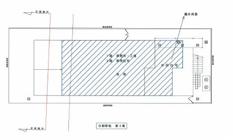
| <第三案> 分割移転B |
賃貸共同住宅部分を構外移転し、所有者住居及び事務所・工場を残地内に曳家、切り取り補修する案です。
■利点
- 残地の有効利用が出来ます。
- 再築部分が小規模になるため経済的です。
- 建物所有者と所有者の会社の機能、利便性が維持できます。
■問題点
|

|
| 4. まとめ |
| 以上の分割できる3つの案を有形的、機能的、経済的な面から比較検討をおこなった結果、本件においては第3案が採用となりました。 |
|
| 移転案 |
分割移転@ |
分割移転A |
分割移転B |
| 有形的合理性 |
○ |
○ |
○ |
| 機能的合理性 |
△ |
× |
○ |
| 経済合理性 |
△ |
× |
○ |
| |
|
|
採用案 |
|
| 本件は3つ用途で使用されている1棟の建物が支障となり、残地においては容積率が不適合になるため分割移転の検討を行いました。その結果、既存の建物を一部曳家する第3案を営業休止期間が長期におよびますが、総合的に経済合理性が高く、所有者の従前の機能に一番近い状態を確保できることから採用工法として決定しました。 |
|
>>このページの先頭へ
|