| 1.対象の概要 |
■ 敷地概要
- 敷地面積 : 62,000u
- 買収面積 : 650u
- 残地面積 : 61,350u
- 取得割合 : 1.0%
- 建築基準法の用途地域制限
- 建築基準法の建築制限
- 建ぺい率 : 60%
- 容積率 : 200%
- 防火指定 : なし
■ 建物の概要
建物の使用区分
| No |
構造・階数 |
用途 |
建築面積 |
延床面積 |
備考 |
| A棟 |
重量鉄骨造3階建 |
事務所 |
910u |
2,300u |
|
| B棟 |
RC造2階建 |
守衛所 |
110u |
90u |
|
| C棟 |
鉄骨造平家建 |
倉庫 |
420u |
420u |
|
| D棟 |
木造平家建 |
工場 |
100u |
100u |
生産施設 |
| E棟 |
木造平家建 |
受電室 |
70u |
70u |
生産施設 |
| F棟 |
木造平家建 |
研修室 |
430u |
430u |
|
| G棟 |
木造2階建 |
倉庫 |
290u |
580u |
|
■ 建物と敷地内の使用状況等
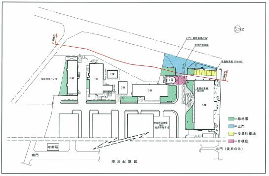
- 支障となる正門部分は、420uの面積を有し、間口25mで主要道路に面し、社章看板、銘板が設けられ、大手電機メーカーの本社の顔としてゆとりある景観を構成している。
- 正門は24時間利用され、車輌での利用は普通車輌(社用車・役員通勤車・外来者)のみである。なお、通勤車輌の乗り入れは禁止されている。
- 正門に隣接してB棟守衛所が設けられ、社員及び外来者の管理及び防犯のために、警備員が交代で詰めて対応しており、正門と守衛所は密接不可分の関係にある。
- 正門の他に、南門、北門が設けられている。南門は、社員及び、製品等の搬出入トラックが利用しており、北門は、社員のみが利用している。なお、南門にも守衛所が設けられている。
- A棟は、全ての業務の管理を行なう会社の中枢である。C棟では、全ての工場で使用する部品の供給業務が行なわれ、部品の自動検索システムを設置し対応している。E棟は全ての建物に電気を供給する受電室である。F棟は研修室であるが、一部娯楽室としても使用されており、直接業務にかかわらない。なお、当該工場は工場立地法で規定する既存特定工場に該当する。(受託事例No.019参照)
- 正門とA棟の間には9台の役員駐車場が設けられ、全てが支障になる。従業員用駐車場は工場近隣に17ヶ所設けられ、1,100台が駐車可能だが、満車である。
- 敷地南側には多目的スペースが設けられ、製品の展示場、社内の運動会等に利用されている。
|
|

|
| 2. 検討のポイント |
- 正門と役員駐車場が支障となっており、建物は支障にならないこと。
- 正門と守衛所は密接不可分の関係にあること。
- 正門の他に、南門、北門が設けられていること。
- A棟、E棟は、機能的に重要であり、関連移転が伴わないこと。
- F棟は直接業務にかかわらないこと。
- 工場立地法で規定する工場であること。(建築基準法等も含め、各案において検討しましたが、いずれも適合しました。なお、その説明は多種に及ぶため、詳細については省略します。)
|
| 4. 考えられる案 |
まず、建物の関連移転が伴わない案を検討しましたが、敷地の確保が出来ないことから、大手電機メーカー本社正門としてのゆとりある景観が保てず、機能回復は図れませんでした。(こちらも、詳細については省略します。)
|
|
| <第一案>B棟守衛所の構内再築 |
B棟守衛所の庇の形状を変更して、現在より東側に建築する案です。その移転工程は次の通りです。
@ B棟守衛所の機能を南門守衛所に移転させる。
↓
A B棟守衛所を解体する。
↓
B B棟守衛所の庇の形状を変更して、現在より東側に建築する。
↓
C B棟守衛所の機能を南門守衛所から復帰させる。
なお、B棟守衛所の建築工事期間中は、正門の代わりに南門を使用する事で、使用頻度が煩雑になりますが、南門の守衛所にB棟守衛所の警備員を配置する事で、対応が可能であると判断しました。
■ 利点
- 建物移転が1棟だけなので経済的であり、移転期間も短期間ですむ。
- 営業休止が発生しない。
- 役員駐車場が確保出来る。
■ 問題点
- 正門面積が著しく減少し、機能回復が図れない。
- 混雑時には受付待機車輌が公道に停車するおそれがある。
|
|

|
| <第二案>B棟守衛所、C棟倉庫の構内再築 |
B棟守衛所は庇の形状を変更して、C棟倉庫は2階建に集約し建築する案です。C棟倉庫建築中は仮設の建物を設置することで、営業休止が伴いません。その移転工程は次の通りです。
@ C棟倉庫の仮設建物を、多目的スペースに建築し新規に、部品の自動検索システムを設置する。
↓
A C棟倉庫の機能を仮設建物に、B棟守衛所の機能を南門守衛所に移転させる。
↓
B B棟守衛所、C棟倉庫を解体する。
↓
C C棟跡地に、B棟守衛所は庇の形状を変更して、C棟倉庫は2階建に集約
し建築する。
↓
D C棟倉庫の機能を仮設建物から、B棟守衛所の機能を南門守衛所から復帰
させる。
|
|
■ 利点
- 正門の機能が確保出来る。
- 営業休止が発生しない。
- 役員駐車場が確保出来る。
■ 問題点
- 頻繁に製造部品の供給業務を行なうC棟倉庫を2階建にすることで、作業動線が上下に分かれ、業務の効率が低下する。
- 部品の自動検索システムを新たに2回設置するため、補償額が高額になる。
- 多目的スペースが一時使用できない。
|
|

|
| <第三案>B棟守衛所、C棟倉庫、F棟研修室の構内再築 |
B棟守衛所は庇の形状を変更して、C棟倉庫は機能低下にならないように現在の形状で、F棟研修室は2階建に集約し建築する案です。また、F棟研修室の解体跡地にC棟倉庫を建築することで、営業休止が伴いません。その移転工程は次の通りです。
@ 直接業務にかかわらないF棟研修室の動産を仮倉庫に保管する。
↓
A F棟研修室を解体する。
↓
B F棟研修室跡地に、C棟倉庫の形状を変えずに建築する。
↓
C 現在のC棟倉庫の機能を移転させる。
↓
D B棟守衛所の機能を南門守衛所に移転させる。
↓
E B棟守衛所、C棟倉庫を解体する。
↓
F C棟倉庫跡地に、B棟守衛所は庇の形状を変更して、F棟研修室は2階建に集約し建築する。
↓
G B棟守衛所の機能を南門守衛所から、F棟研修室の動産を仮倉庫から復帰させる。
|
|
■ 利点
- 機能回復が図れる
- 営業休止が発生しない。
- 役員駐車場が確保出来る。
■ 問題点
- F棟研修室が一時使用できない。
- 関連移転の建物が3棟になる。
- 移転期間が長期になる。
|
|

|
| 5. まとめ |
第一案は経済的ではありますが、正門敷地が減少し機能回復が図れません。第二案は正門の機能は確保出来ますが、平家建の倉庫を2階建に集約することになり、業務の効率が低下します。第三案は3棟の建物を移転することで、従前の機能回復が図れます。
以上の3案をまとめると以下の通りとなります。 |
| 検討案 |
第一案 |
第二案 |
第三案 |
| 有形的合理性 |
× |
○ |
○ |
| 機能的合理性 |
× |
× |
○ |
| 経済合理性 |
○ |
× |
△ |
| 認 定 |
|
|
採用 |
|
今回の事例のように、建物が支障にならない場合でも、工作物等支障になる機能の重要性、配置の状況、規模等を考慮し、建物を移転するケースもあります。そのためには、敷地の使用状況、建物等の使用状況、法人の規模等を十分把握し、慎重に補償範囲を決定することになります。
|
>>このページの先頭へ
|
|