| 1.対象の概要 |
■ 敷地概要
- 敷地面積 : 約 450u
- 買収面積 : 約 80u
- 残地面積 : 約 370u
- 取得割合 : 約 17.7%
- 都市計画法の用途地域制限
- 建築基準法の建築制限
- 建ぺい率 : 50%
- 容積率 : 100%
- 道路斜線制限 : 勾配 1.25 適用距離20m (当該地域制限値)
-
- ※路上空間の開放感等都市環境を確保するため、沿道の建築物の高さを前面道路の反対側の境界線から一定の距離(適用距離)の範囲内において、当該敷地側の上空に向かって一定の斜線(勾配)を引き、その敷地の建築物の高さを制限するものです。
-
- 隣地斜線制限 20m+勾配1.25 (当該地域制限値)
-
- ※隣地の日当たり、風通しを維持するため、隣地境界線上から一定の高さと、その高さから上空に向かう一定の斜線によって、建物の高さ、形態を制限するものです。
-
- 日影規制 日影時間3時間・2時間、測定面1.5m(当該地規制値)
-
- ※冬至において、建築物が8時から16時までに発生する隣地の日照の時間を一定基準確保するための規制です。
■ 建物の概要
木造2階建一部鉄骨造平家建作業所兼住宅
- 建築面積 : 180 u
- 述べ床面積 : 290 u
■ 建物と敷地内の使用状況等
- 敷地の北側には建物が建築され、南側には整備に必要な一柱リフト、二柱リフト等整備機器類が設置されています。
- それ以外の空地は、6台分の整備車輌置き場、作業スペースとして利用されています。(自家用車輌は隣地に2台分の保管場所を確保しています)
- 鉄骨造平家建部分は、所有者が営む自動車整備工場として使用しています。
- 木造1階部分は、住居と事務所、2階は住居として使用されています。
- 車輌の出入りは、東側県道より行なわれています。
|
|

|
| 2. 検討のポイント |
- 工法により道路斜線制限、日影規制の抵触が予想されること(用途制限、建ぺい率、容積率については残地において基準を満たしています)。
- 実態調査において、一柱リフト、二柱リフト等整備機器類および6台分の車両スペースが必要であること。
- 当該事業所は、道路運送車両法施工規則で定める普通自動車分解整備事業(小型)の認証工場であり、この規則を遵守すること(認証工場の規則は多岐に及ぶため、省略いたします)。
|
| 3. 考えられる案 |
本件は残地があるため、従前の機能回復を前提に構内移転の検討を行います。尚、曳家工法は施工時に敷地を越境してしまうことから合理的ではありません。また、改造工法は改造することによる影響が建物全体におよび、再築工法と同等となることから合理的ではありません。
|
|
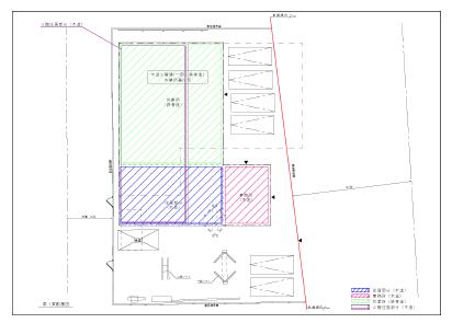
| <第1案>再築工法(同種同等) |
建物の形状を変えることなく向きを変えて再築する案です
■ 利点
■ 問題点
- 屋内作業場と屋外の作業スペースが分断され、作業効率に支障が生じます。
- 整備車両の移動に公道を使用することになります。
- 一柱リフト、物置、門扉が支障となります。
|
|

現況の建物形状では従前の機能回復が図れないため、間取りの変更を行い、照応建物として再築を検討します。
|
|
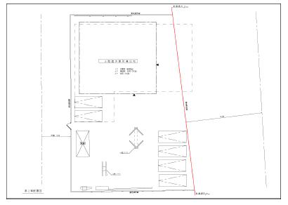
| <第2案>照応建物T |
従来の2階建の建物を3階建(1階鉄骨造作業所、2階木造事務所、住居、3階木造住居)の照応建物として敷地北側に建築します。
■ 利点
- 従前と同等の営業及び居住面積が確保でき、機能回復が可能となります。
- 一柱リフト、二柱リフト等整備機器類、作業スペースに支障が生じません。
■ 問題点
- 2階建を3階建にしたことにより、建築基準法の日影規制の基準を満たすことが出来ません。
|
|

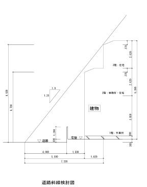
本件の道路斜線制限による道路斜線は下図の様になり、
・1.2Fの建物の高さ制限は6.87m
〔4.0m(道路幅員)+ 1.5m(敷地内建物までの距離)〕×1.25(勾配)
5.5m × 1.25 = 6.87 > 6.70 : 可
・3Fの建物の高さ制限は9.15m
〔4.0m(道路幅員)+ 3.32m(敷地内3Fまでの距離、1.5m+1.82m)〕×1.25(勾配)
7.32m × 1.25 = 9.15 > 9.02 : 可
・本件、照応建物1.2Fの建物高さ6.7m、3Fの建物高さ9.02mで制限内です。
|
|
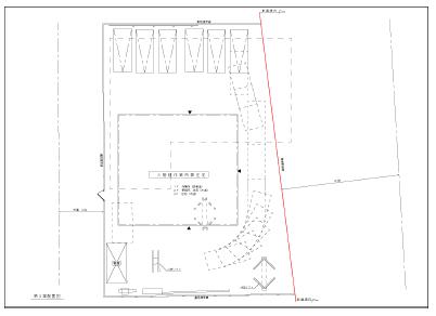
| <第3案>照応建物U |
従来の2階建の建物を3階建(1階鉄骨造作業所、2階木造事務所、住居、3階木造住居)の照応建物として、敷地中央部分に建築します。
■ 利点
- 従前と同等の営業及び居住面積が確保できます。
- 建築基準法の日影規制基準を満たすことが出来ます。
- 一柱リフト、整備車両の移動は伴いますが、従前同様の作業効率は確保できます。
■ 問題点
|
|
|
| 4. まとめ |
以上、残地を移転先とした再築可能な3つの案を、有形的、法制的、機能的、経済的な面から比較検討を行なった結果、
- 第1案は作業スペースが分断され、作業効率が著しく低下します。また、一柱リフト、物置、門扉の移設も生じます。
- 第2案は日影規制の基準を満たすことができません。
- 第3案は一柱リフト、物置の移設が生じます。
|
| 移転案 |
第1案
(同種同等) |
第2案
(照応建物T) |
第3案
(照応建物U) |
構外再築 |
| 有形的検討 |
○ |
○ |
○ |
○ |
| 機能的検討 |
× |
○ |
○ |
○ |
| 法制的検討 |
○ |
× |
○ |
○ |
| 経済的合理性 |
△ |
○ |
△ |
× |
| |
|
|
採用案 |
|
|
上表の通り、本件は第3案が採用となりました。
尚、構内再築のため営業休止期間が長期に及ぶため、構外再築との経済比較を行ないましたが、構外再築工法には残地価格を加算することから、本件においては、長期の休業補償を行なっても第3案(構内再築:照応建物U)が経済的となりました。
今回は、残地内に建物を3階建として再築することにより、従前では抵触しなかった建築基準法の道路斜線制限、日影規制の検討が必要になったケースです。
この様に、残地内における再築を検討する際は、照応建物により従前建物では抵触しなかった様々な法制的な事項(条例等含む)の確認、営業体に関する許認可等の要件を十分考慮し、検討することが必要となります。
|
>>このページの先頭へ |
|