| 1.対象の概要 |
■ 敷地概要
- 敷地面積 : 約 1,500u
- 買収面積 : 約 770u
- 残地面積 : 約 730u
- 取得割合 : 約 51.3%
- 用途地域制限
- 建築制限
- 建ぺい率 : 60%
- 容積率 : 200%
- 防火指定 :防火指定なし
■ 建物の概要
建物の構造・用途・面積
| 構造及び用途 |
建築面積 |
延床面積 |
備 考 |
| (A棟)木造2階建専用住宅 |
160u |
300u |
一部支障 |
| (B棟)木造平家建倉庫・作業場 |
40u |
40u |
全部支障 |
| (C棟)木造平家建倉庫 |
38u |
38u |
非支障 |
| (D棟)木造平家建車庫 |
160u |
160u |
非支障 |
| 計 |
398u |
538u |
|
|
■ 建物と敷地の使用状況等
- A棟は所有者夫婦が居住しています。
- B棟は日用品や農器具の倉庫として頻繁に使用されており、屋内では収穫した農作物を、保管及び加工する場所としても利用しています。
- C棟は日頃使用していない日用品等の倉庫であり、利用頻度も低くなっています。
- 所有者は、生産農家であり、A棟東側の作業スペースに車で乗り入れ、収穫した農作物の仕分け、洗浄、箱詰、器具の手入れ等を行っています。
- D棟は、自動車3台分の保管場所となっています。
- 庭として利用している部分には、庭木等が植栽されています。
|
|

|
| 2. 検討のポイント |
- 支障となる建物はA棟、B棟であること。
- 再配置可能な残地が有ること。
- 敷地北側道路は、敷地GLより1.0m程度下がっていること。
- A棟東側の空地部分は、作業スペースとして利用していること。
- 作業スペースまで車で乗り入れ、収穫した農作物や農器具等の般入出を行っていること。
- C棟は利用頻度の少ない倉庫であること。
|
| 3. 考えられる案 |
※ 法制的に、建築基準法上残地に各建物を従前の形状で再配置することは、
可能です。(下記参照)
残地面積=730.00u、建築面積=398.00u、延べ面積=538.00u
建ペイ率=730.00×0.6= 438.00u > 398.00u 適 合
容 積 率=730.00×2.0=1,460.00u > 538.00u 適 合
|
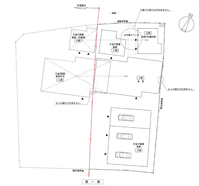
| <第一案> A棟曳家工法 B棟再築工法 |
残地内にA棟を曳家し、B棟を再築する案です。
■ 利点
■ 問題点
- A棟東・西側の人の通行が出来なくなります。
- 作業スペースが減少し、車両の乗り入れも出来なくなります。
- 庭木の移植先が確保出来なくなります。
|
|

第一案では、A・B棟を従前の形状のまま再配置することは可能ですが、作業スペースが減少し、A棟からB・C棟へ人の通行や作業スペースまでの車両の乗り入れも出来なくなるため、従前と同様の機能回復が図れません。
|
|
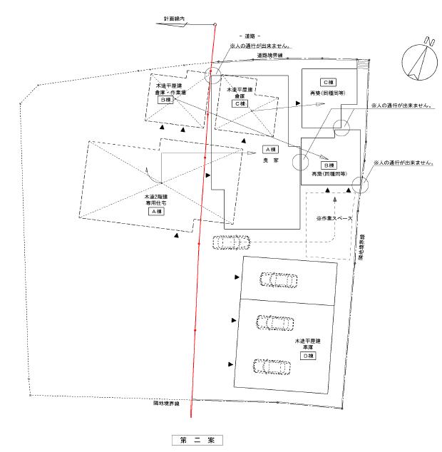
| <第二案> A棟曳家工法 B・C棟構内再築工法(同種同等) |
A棟は一度回転させてから、残地内に曳家し、B・C棟は従前と同種同等の建物を再築する案です。
※ 残地内の再配置において、B・C棟は曳家工法と再築工法それぞれ考えられますが、建物も古く、構造的にも補強が必要となることから、経済的に曳家工法が再築工法よりも高額となるため、B・C棟については再築工法を採用しました。
■ 利点
- 従前とほぼ同様の作業スペースの確保が出来ます。
- 作業スペースへ車両の乗り入れが可能となります。
- 建物形状の変更がありません。
■ 問題点
- 関連移転が生じます。
- 第一案より補償額が高額となります。
- C棟への出入りが出来なくなります。
- 庭木の移植先が確保出来なくなります。
|
|

| 第二案では、関連移転によりC棟を再築工法として、A棟を一度回転させて曳家、B棟を再築工法とし、再配置しましたが、C棟への出入りが出来なくなり、十分な機能回復が図れません。 |
|
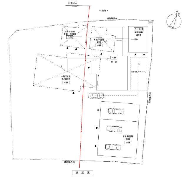
| <第三案> A棟曳家工法 B・C棟を合棟(2階建による照応建物) |
A棟は一度回転させてから残地内に曳家し、B・C棟を合棟した2階建の照応建物とする案です。合棟する建物は、1階にB棟の機能を、2階にC棟の機能を配置します。
■ 利点
- 従前とほぼ同様の作業スペースが、確保出来ます。
- 人と車両動線が確保できます。
■ 問題点
- 関連移転が生じます。
- 第二案とほぼ同額になりますが、第一案より補償額が高額になります。
- C棟の機能を2階に配置することになり、日用品等の搬入出に支障をきたします。
- 庭木の移植先が確保出来なくなります。
|
|

|
| 4. まとめ |
| 以上の3案をまとめると以下の通りとなります。 |
| |
第一案 |
第二案 |
第三案 |
| A棟 |
曳家 |
曳家 |
曳家 |
| B棟 |
構内再築(同種同等) |
構内再築(同種同等) |
構内再築 (合棟による照応建物) |
| C棟 |
移転対象外 |
構内再築(同種同等) |
| D棟 |
移転対象外 |
移転対象外 |
移転対象外 |
| 有形的合理性 |
△ |
△ |
○ |
| 機能的合理性 |
× |
△ |
○ |
| 法制的合理性 |
○ |
○ |
○ |
| 経済合理性 |
○ |
△ |
△ |
| 認定 |
|
|
採用 |
|
第一案は、経済的で再配置も可能ですが、作業スペースが減少し、車両の乗り入れも出来なくなります。また、第二案は、作業スペースの確保は出来ますがC棟への出入りが出来なくなります。
第三案は、従前の機能を確保するために、支障とならないC棟をB棟と合棟し、頻繁に使用されているB棟の機能を1階、日頃使用しておらず、利用頻度も低いことからC棟の機能を2階と認定し、2階建の照応建物とすることで、従前とほぼ同様の機能回復が図れました。尚、移植先が確保できない庭木については一部伐採補償となりました。よって今回は第三案が採用工法となりました。
このように、建物が物理的に移転が可能であっても、従来の機能を著しく損なってはなりません。複数棟の建物がある場合は、直接支障となる建物の移転にとらわれず、支障とならない建物の関連移転も考慮し、その範囲及び移転方法は、現地で建物の使用状況、利用形態等を十分把握した上で、検討を行う必要があります。
|
>>このページの先頭へ
|
|