FileNo. 007
|
建物を建築したり増改築する場合は、建築基準法で定められたルールがあります。公共事業による用地取得や区画整理事業に伴い、建て直しを強いられた場合でもこのルールは守らなければいけません。
この事例は、駅前区画整理事業により、木造2階建の住宅を仮換地先※1へ建て直しする場合に、仮換地先が防火地域※2であったため、木造の建物は建てられないとなったケースです。
|
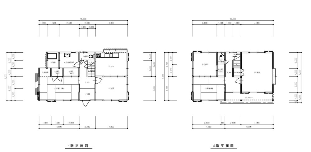
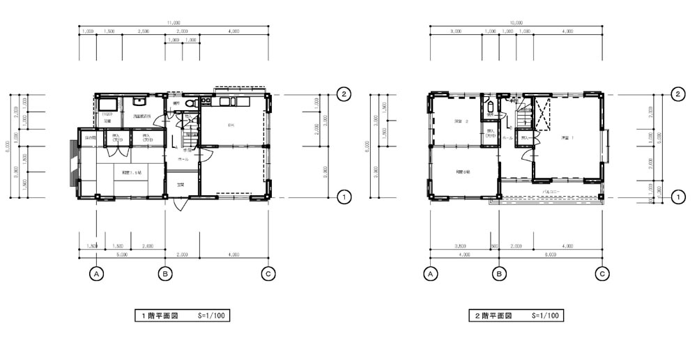
| 1. 対象物件の概要 |
現在の住環境
- 構造 木造2階建専用住宅
1階 64.00u
2階 54.00u
- 延床面積 118.00u
- 敷地面積 55坪(180u)
- 住環境 車庫1台・小規模の庭等
(一般的な住宅)
|
仮換地後の住環境
- 構造
木造2階建専用住宅(建築不可能)
1階 64.00u
2階 54.00u
- 延床面積 118.00u
- 敷地面積 45坪(150u)
減歩16%
- 住環境 車庫1台・小規模の庭等
(共に再現可能)
|
|

|
| |
| 2. 建物移転について |
| |
このケースでは仮換地先が防火地域となるため、建物は耐火建築物としなければならず、木造では耐火建築物とはなりません。
よって、非木造建物での建築物となり、さらに耐火性能を有する建物としなければなりません。
(法・第61条・107条)※3
損失補償による建物の移転料は、従前の建物(木造建物)を調査・算定した結果に基づき補償金が支払われます。この場合は非木造建物(耐火建築物)を建てざるを得ないため、建築費用に大きな差が生じます。
このようなケースのために損失補償基準の中に『法令改善費用に係わる運用益損失額の補償』との項目があります。
この基準の内容は「法令改善費用の要する改善建築工事等の費用は補償できないが、その改善を必要とする時期以前に、施設の改善を行うことになったときは、それに要する費用について補償をする。」とあります
図を例にします。
昭和60年に新築した建物を標準耐用年数48年の場合で考えますと、平成17年に事業により移転を余儀なくされ、新築後20年で移転しなければなりません。
もし事業がなければあと28年はそのまま住むことができるわけです。
従って、建て直しの時期が事業により早まった訳ですから、それにより必要となる改善の費用を補償するということになります。
|
| ※ 1 |
『仮換地先』 土地区画整理事業において、換地処分を行う前に、仮の換地たる宅地を定め、使用収益を行使できる権原を付与することを仮換地指定と言い、指定した換地を仮換地という。区画整理事業による事業計画によって定められた、宅地の再配置後の土地。
|
| ※ 2 |
『防火地域』 防火地域内においては、階数が3以上であり、又は延べ面積が100uを超える建築物は耐火構造としなければならない。
準防火地域』 準防火地域においては、地階を除く階数が3である建築物は耐火建築物、準耐火建築物又は外壁の開口部の構造等、防火上必要な政令で定める技術的基準に適合する建築物としなければならない。
|
| ※ 3 |
防火地域内の建築物・耐火構造 |
 |
|
|
| 3. 移転費用 |
○ 費用比較
それでは、実際に木造建物を非木造建物(耐火建築物)にした場合の建築費を比較してみます。
| 木造建物 |
|
非木造建物 |
- 構造 木造在来工法(柱材種・桧の1等)
- 程度区分 公庫建築程度(3等級)
- [改善箇所] (法・第107条)
|
  |
- 構造 鉄骨造(肉厚9〜4mm)
- 程度区分 4等級
- 外壁・間仕切壁 1時間耐火
- 柱・梁・床 1時間耐火
- 屋根 30分耐火
|
|
| 木造建物 |
|
非木造建物 |
| [1] |
仮設 |
684,000 |
|
[1] |
仮設 |
1,211,000 |
| [2] |
基礎工事 |
620,000 |
|
[2] |
基礎工事 |
821,000 |
| [3] |
軸部工事(木材のすべて含む) |
5,941,000 |
|
[3] |
く体工事 |
4,166,000 |
| [4] |
屋根工事 |
601,000 |
|
[4] |
屋根工事 |
884,000 |
| [5] |
外壁工事 |
1,647,000 |
|
[5] |
外壁工事(外部雑含む) |
2,447,000 |
| [6] |
内壁工事 |
1,502,000 |
|
[6] |
内壁工事 |
2,692,000 |
| [7] |
床工事 |
653,000 |
|
[7] |
床工事 |
1,155,000 |
| [8] |
天井工事 |
542,000 |
|
[8] |
天井工事 |
919,000 |
| [9] |
開口部 |
1,883,000 |
|
[9] |
開口部 |
2,862,000 |
| [10] |
造作工事 |
1,297,000 |
|
[10] |
造作工事 |
771,000 |
| [11] |
樋工事 |
74,000 |
|
[11] |
樋工事 |
[5]に含む |
| [12] |
塗装工事 |
374,000 |
|
[12] |
塗装工事 |
[5〜9]に含む |
| [13] |
設備工事 |
3,007,000 |
|
[13] |
設備工事 |
3,741,000 |
| [14] |
付随工作物 |
441,000 |
|
[14] |
付随工作物 |
[5]に含む |
|
計 |
19,266,000 |
|
|
計 |
21,669,000 |
|
共通仮設費 |
577,000 |
|
|
共通仮設費 |
1,245,000 |
|
諸経費 |
4,960,000 |
|
|
諸経費 |
5,636,000 |
|
合計(建築費) |
24,803,000 |
|
|
合計(建築費) |
28,550,000 |
|
1u当たり |
210,100 |
|
|
1u当たり |
241,900 |
|
1坪当たり(3.3u) |
693,600 |
|
|
1坪当たり(3.3u) |
798,400 |
|
| ※算定基準が異なるため各部位の費用・経費率等は異なります |
|
|
(非木造) (木造) |
|
|
| 建築費の差 |
|
28,550,000 − 24,803,000 = 3,747,000 ( 15%増 ) |
|
|
木造を非木造(耐火建築物)にすることにより、この建物の場合で370万円の増となります。 |


○補償額
それぞれの建築費を算定して370万円(15%)の費用増が明確になりましたが、その費用そのものについて補償することは財産価値増となるため満額の補償はできません。 |
| { 木造 → 非木造(S造・耐火建築物) } |
この費用については建て直しの時期が早まったことによる運用益損失額を算定し補償することになります。
|
r:年利率 3.5% n:残耐用年数
|
| 従って、補償金は2165万円 + 228万円 = 2393万円に解体費を加算した額となります。 |
| 4. 最後に |
今回、この事例をHPに掲載するきっかけは、同じ面積・間取りの木造を非木造(S造・耐火建築物)に変更したらいくらかかるか、又、補償金はどのくらいになるかの疑問からです。
結果は、建築費で非木造が木造の15%増となりました。
この15%増が高い、安い、妥当であるかの判断は人それぞれだと思います。
この事例が、ひとつの例として、なにかのご参考になれば幸いです。
又、法令改善による運用益損失額の取扱いについては、その都度、詳細を起業者と協議することが望ましいです。
|
>>このページの先頭へ
|
|